IDI CAD Drawings (Conceptual)

Concept

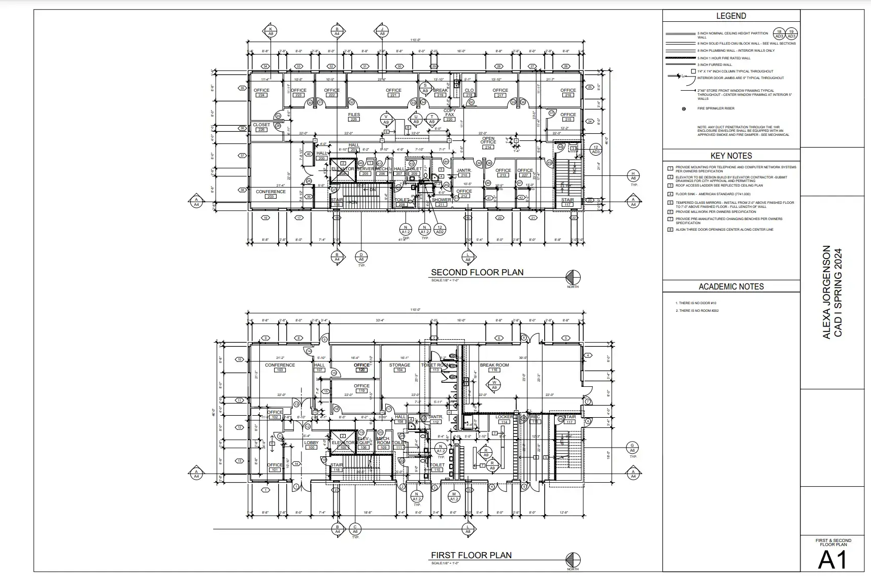
This project involves a first and second floor plan, first and second reflected ceiling plan, door and hardware schedule, window schedule, and interior elevations for a conceptual build.

Alexa Jorgenson

714-270-0840 | alexa.jorgenson@idi.edu

© Alexa Jorgenson, 2026